


Schmuckstück in Köln-Lövenich – Haus mit Dachterrasse statt Garten
Objekt-ID: VKH0232-NF, Ort: 50859 KölnDaten im Überblick
Preise und Kosten
Bei diesem Preis handelt es sich um den Richtpreis im Gebotsverfahren. Der Richtpreis darf sowohl unter- als auch überboten werden. (Weitere Infos zum Gebotsverfahren erhalten Sie in der Rubrik "Sonstige Angaben")
Energiepass
Objektbeschreibung
Sie lieben das Besondere?
Dann ist dieses charmante und pflegeleichte Zuhause genau das Richtige für Sie!
Mit einer Wohnfläche von ca. 76 m² bietet diese Immobilie ein durchdachtes Raumkonzept über mehrere Ebenen – ideal für Paare oder Singles, die das Außergewöhnliche schätzen. Insgesamt stehen Ihnen drei Zimmer, eine Einbauküche, zwei Bäder sowie eine großzügige, sonnige Dachterrasse zur Verfügung.
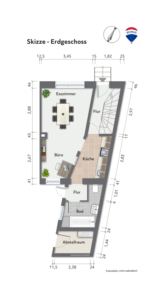
Im Erdgeschoss erwartet Sie neben der Einbauküche ein geräumiges Esszimmer, das zugleich genügend Platz für einen kleinen Arbeitsplatz bietet. Das vollwertige Bad auf dieser Ebene ist mit einer Badewanne und einem Waschmaschinenanschluss ausgestattet. Die Einbauküche aus 2022 kann mit übernommen werden.
Im 1. Obergeschoss befindet sich das großzügige Wohnzimmer mit Kaminofen – ein echtes Highlight für gemütliche Stunden in der kühlen Jahreszeit. Von hier aus gelangen Sie direkt auf die große Dachterrasse mit Ausrichtung zur Rückseite des Hauses. Sie bietet Privatsphäre und lädt zum Entspannen ein – ein echtes Plus für alle, die einen Rückzugsort im Freien suchen, ohne sich um Gartenpflege kümmern zu müssen.
Das Dachgeschoss beherbergt ein platzbietendes Schlafzimmer sowie ein modernes Duschbad – ideal für komfortables Wohnen. Zwischen dem Badeingang und dem Treppenaufgang befindet sich eine praktische Nische, die sich hervorragend als Abstellfläche für Staubsauger, Bügelbrett oder andere Haushaltsutensilien eignet.
Besonders hervorzuheben ist die helle und freundliche Atmosphäre im gesamten Haus: Ungewöhnlich große Fenster im Erdgeschoss und im Obergeschoss lassen viel Tageslicht herein und verleihen allen Räumen ein angenehmes, offenes Raumgefühl.
Abgerundet wird das Angebot durch ein teilunterkellertes Untergeschoss, das Ihnen zusätzlichen Stauraum bietet – ideal für Waschmaschine, Trockner und alles, was nicht täglich benötigt wird.
Diese Immobilie hat Ihr Interesse geweckt?
Dann freuen wir uns auf Ihre Kontaktaufnahme.
Ausstattung der Immobilie
Die ausführliche Beschreibung der Ausstattung erhalten Sie in unserem PDF-Exposé.
Bitte senden Sie uns hierzu eine Anfrage!
Was Sie sonst noch wissen sollten
Es liegt ein Energieverbrauchsausweis vor.
Dieser ist gültig bis 11.2.2026.
Endenergieverbrauch beträgt 98.10 kwh/(m²*a).
Wesentlicher Energieträger der Heizung ist Gas.
Das Baujahr des Objekts lt. Energieausweis ist 2012.
Die Energieeffizienzklasse ist C.
Besichtigungen des Hauses sind nach Abstimmung mit uns möglich.
Anmerkung zum Gebotsverfahren:
Nach der Besichtigung der Immobilie haben Sie die Möglichkeit, innerhalb einer festgesetzten Frist ein schriftliches Kaufangebot abzugeben.
Alle eingegangenen Gebote werden ausgewertet. Bei der Auswahl des Käufers können neben der gebotenen Summe auch weitere Kriterien, wie beispielsweise Finanzierungsnachweise oder Einkommensverhältnisse, eine Rolle spielen.
Mit der Abgabe eines Gebots entsteht grundsätzlich kein Anspruch auf Abschluss eines Kaufvertrages.
Der guten Ordnung halber weisen wir Sie darauf hin, dass unsere Tätigkeit, eine Vermittlungs-/Nachweisgebühr in Höhe von 3,57 % des Kaufpreises inkl. der gesetzlichen Mehrwertsteuer nach notariellem Vertragsabschluss nach sich zieht. Durch Ihre weitere Objektanfrage bestätigen Sie die Vereinbarung und Anerkennung dieser Maklercourtage.
Ferner beruhen diese Objektdaten auf Angaben des Verkäufers, für die wir keine Gewähr übernehmen.
Fragen Sie uns auch nach den aktuellen Finanzierungsmöglichkeiten!
Lagebeschreibung
Die Immobilie liegt in einer ruhigen Seitenstraße eines reinen Wohngebietes im Stadtteil Lövenich.
Lövenich liegt im Kölner Westen, zählt ca. 9.000 Einwohner und gehört zum Stadtbezirk Lindenthal. Es grenzt an die Stadtteile Widdersdorf, Müngersdorf, Junkersdorf und Weiden.
Am Autobahnkreuz Köln-West, ist Lövenich mit der A 4 und der A 1 durch eine eigene Anschlussstelle bestens an das Fernstraßennetz angebunden. Außerdem erreichen Sie über die B 55 die Kölner Innenstadt mit dem Auto.
Die nahegelegene S-Bahn–Haltestelle ist zu Fuß in wenigen Minuten erreichbar. Die S-Bahnen bringen Sie hier in ca. 15 Minuten in das Kölner Zentrum und zum Hauptbahnhof. Die S-19 fährt direkt zum Flughafen KölnBonn.
Außerdem haben Sie die Möglichkeit, an der Haltestelle „Weiden-West“ in die Stadtbahnlinie 1 umzusteigen. Diese bringt Sie in die angrenzenden Stadtteile, in die Innenstadt und sogar auf die andere Rheinseite bis Bensberg.
Das Rheincenter in Köln-Weiden, eines der modernsten Einkaufscenter Europas, liegt nur ca. 1,5 km entfernt. Dort finden Sie eine vielfältige Auswahl an Geschäften, Restaurants und Dienstleistungsangeboten, die für ein angenehmes Einkaufserlebnis sorgen.
Zahlreiche Vereine sorgen in Lövenich für ein ausgewogenes Freizeitangebot und gute soziale Netzwerke. Der nahegelegene Golfclub am Rande von Lövenich rundet das Sportangebot ab.
Dem Stadtteil Lövenich ist es gelungen, durch den Erhalt zahlreicher Baudenkmäler, wie Wohnhäuser, Villen, die Kirche St. Severinus und insbesondere einige Hofanlagen eine dörfliche und gute soziale Struktur zu erhalten.
Ein Stadtteil mit Wohlfühlcharakter!
Ihr Ansprechpartner

Nils Fischer
Immobilienkaufmann (IHK)